- Client : Studioplus Architectes
- Mandat : Projet et direction des travaux
- Statut : Terminé
- Année : 2021
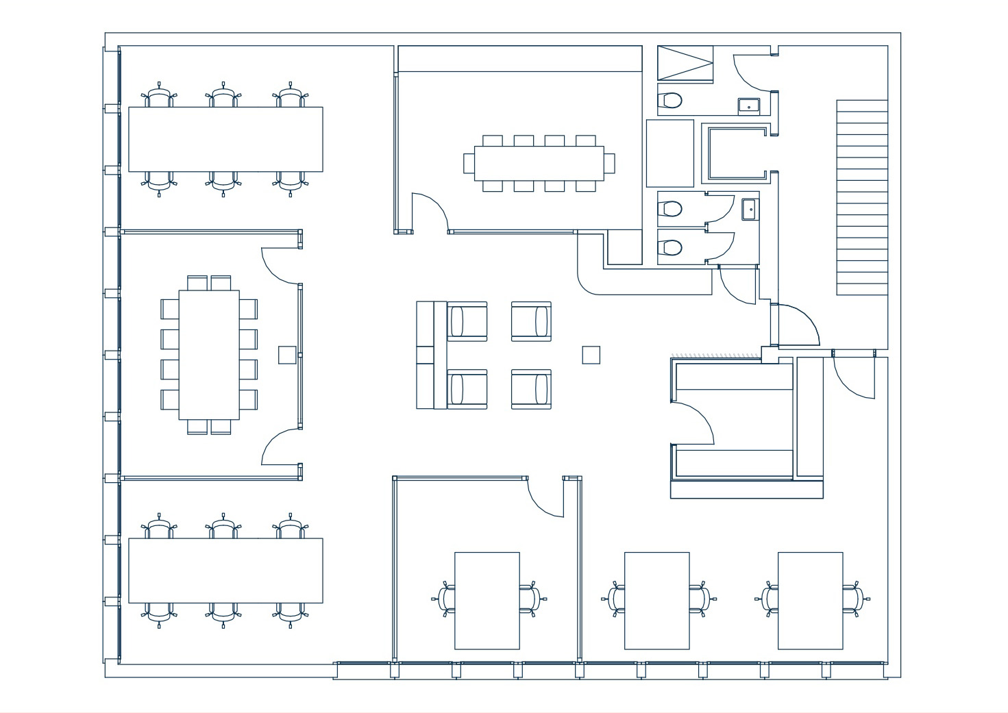
Aménagement des bureaux de Studioplus Architectes, Genève
Les nouveaux bureaux de Studioplus Architectes, situés au cœur du quartier des Eaux-Vives à Genève, s’installent dans un immeuble administratif entièrement restructuré.
L’espace a été complètement repensé : cloisons vitrées, suppression des faux-plafonds et démontage des parois ont mis en valeur la structure brute, conférant un style minimaliste et industriel.
L’aménagement privilégie un open space fluide, ponctué de zones distinctes (bureaux fermés, salle de réunion, cuisine) pour optimiser la convivialité et la productivité.
Cette disposition favorise la lumière naturelle, la transparence et la collaboration tout en préservant des espaces intimes. Un équilibre entre fonctionnalité, esthétique et bien-être au travail, en phase avec l’identité du studio.
Photos du projet : Carmine Errico







Plans

